Amstelveen

Maimonideslaan

  • 80m²
  • 2
€2.250 p.m. excl

Description

Rotsvast Amstelveen offers for rent:
Beautiful, bright and modern 2-bedroom apartment with a balcony of approximately 14 m², located on the fifth floor of the high-quality apartment complex “De Terrassen” (built in 2018). The apartment has an energy label A and is rented including one private parking space in the secured parking garage.

*Photos are for impression purposes of a model apartment. The property is offered without furniture.

Location:
The apartment is very centrally located. On one side, you have the lively Stadshart Amstelveen, while on the other, the Groenhof shopping center is within walking distance for all daily amenities. You can also enjoy the peace and greenery of the nearby nature and recreational areas.

Public transport connections are excellent: tram 5, metro 51, and several bus lines are within walking distance, offering quick access to Amsterdam Zuid, the Zuidas, and Schiphol Airport. By car, Amsterdam and Schiphol can be reached in about 10 minutes via the nearby A9 motorway or the Beneluxbaan.

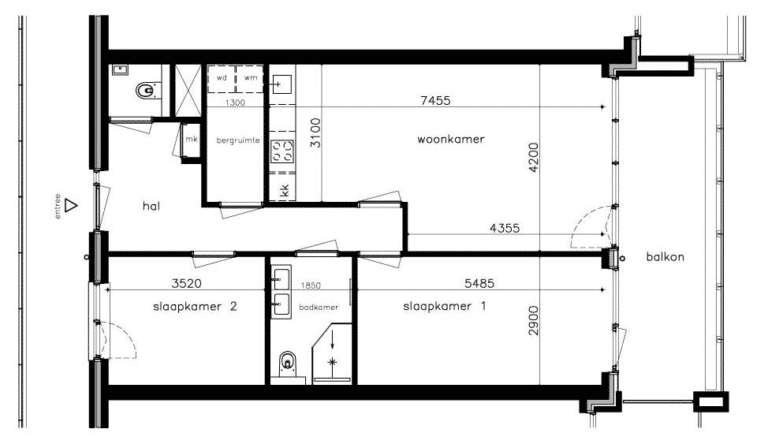
Layout:
Central main entrance, with stairs or lift to the fifth floor.

Apartment entrance, hallway with access to all rooms.

The bright living and dining area features a modern open kitchen equipped with built-in appliances such as a dishwasher, combi oven, electric hob, fridge with freezer compartment, and extractor hood.

In the hallway, there is a separate toilet, a laundry/storage room with a washing machine and dryer, and access to the luxurious bathroom in neutral tones, fitted with a shower, toilet, and double washbasin.

The apartment has two spacious bedrooms (approx. 16 m² and approx. 11 m²).

The east-facing balcony is accessible from both the living room and the master bedroom.

The apartment comes with one parking space in the secured parking garage and a private storage room (approx. 6 m²).

Particulars:

  • Delivered unfurnished with flooring, curtains, washing machine & dryer
  • Equipped with underfloor heating
  • Private central heating boiler
  • Spacious east-facing terrace
  • Includes parking space in secured garage
  • Includes private indoor storage
  • Energy label A
  • Available from September 2025

Financial:

  • Rent: €2,250 p/m (including flooring, curtains, washing machine & dryer, excluding utilities)
  • Service charges: €95 p/m
  • Deposit: 2 months’ basic rent

For more information or to arrange a viewing, please contact our Amstelveen office:
T: +31 (0)20 503 65 60
E: amstelveen@rotsvast.nl
W: https://www.rotsvast.nl/

Our general terms and conditions apply.

Features

  • Base rent €2.250
  • Total rent Service costs €2.250 Included
  • Other costs Gas/Heat Water Electricity Internet Television - Not included Not included Not included Not included Not included
  • Deposit €4.500
  • Energy label A
  • Type Apartment, Apartment with external access, Apartment
  • New construction No
  • Finish level Resale
  • Number of rooms 3
  • Number of bedrooms 2
  • Surface area 80 m²
  • Balcony Yes
  • Roof terrace No
  • Parking Parking garage, On site
  • Including VAT No
  • Smoking No
  • Pets allowed In consultation

Floor plans

Free search

Are you wondering when a rental property that perfectly suits your needs will become available?

More information
Committed to your property

Rotsvast is more than a service provider - we are a partner who thinks with you.

Discover our approach

In the neighbourhood

Filter by facilities
Amstelveen

Monday to Friday from 09:00 to 18:00. Saturday by appointment.

Request information immediately?