Leiden

Kruidenhof 30

  • 50mยฒ
  • 1
€1.650 p.m.

Beschrijving

KRUIDENHOF 30, LEIDEN

DE FOTO'S ZIJN EEN IMPRESSIE EN AFKOMSTIG VAN EEN ZELFDE WONING IN HET GEBOUW!

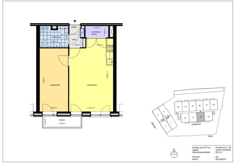
Op de 1e etage gelegen van het complex ''DE RUYTER'' staat dit gestoffeerde 2-kamer (1 slaapkamer) appartement aan de voorzijde van gebouw B met luxe keuken, badkamer en eigen balkon op het zuiden.

Het liefst willen we het allemaal. Duurzaam buiten wonen en toch vlakbij de stad. Die wens wordt werkelijkheid bij โ€De Ruyterโ€ in Leiden. Wonen aan / buiten de singel maar toch minder dan vijf minuten fietsen, zo dichtbij is het bruisende hart van Leiden. Een complex met 46 huurappartementen ( 2 en 3 kamer) in Leiden.

De woningen zijn verdeeld over 2 gebouwen (Gebouw A en Gebouw B). Gebouw A aan de Zijlsingel zijde is geheel ontworpen in de sfeer van de aangrenzende percelen. Hierdoor is de beleving van het gebouw authentiek. De buitenmuren zijn opgetrokken uit een baksteen die past in het straatbeeld.

Indeling:
Entree aan de zijkant van het gebouw met bellenplateau en brievenbussen. Entree op de begane grond. Binnenkomst in hal met toegang tot de verschillende vertrekken. Woonkamer met luxe openkeuken voorzien van vaatwasser, koelkast, inductie kookplaat, afzuigkap en combi-magnetron. Luxe badkamer met inloopdouche, wastafel, toilet designradiator en wasmachine aansluiting. Vanuit de woonkamer toegang tot de slaapkamer.

Kenmerken:
De woningen worden gebouwd met een epc norm van minder dan 0,4. met behulp van zonnepanelen en of warmtepomp bereiken ze een energielabel van A+++. Dit betekent een lage energierekening van uw energiebedrijf. Alle woningen zijn ingepakt met isolatie, waardoor geluid en warmte / koude binnen je eigen woning blijft. Alle ramen worden voorzien van isolerende HR++ beglazing. Door de gehele woning ligt vloerverwarming. De constructie van het gebouw is zeer degelijk met onder andere betonnen vloeren.

Opleveringsniveau:

  • PVC vloer
  • wandafwerking met renovlies behang en gesaust
  • volledig ingerichte keukens met vaatwasser, inductiekookplaat, combi magnetron, koelkast
  • badkamers met douche en wastafel
  • raambekleding
  • plafondverlichting

Bijzonderheden:

  • Huurprijs van โ‚ฌ 1.650,- is excl. elektra, water en TV/Internet
  • Bijkomende verplichte kosten van โ‚ฌ 75,- per maand voor servicekosten
  • Bijkomende verplichte kosten van โ‚ฌ 92,93 voor contract met InWarmte
  • Beschikbaar per 14 oktober 2025

SELECTIEPROCEDURE:

Rotsvast bepaalt op basis van binnenkomende mail welke kandidaten er het eerst hebben gereageerd. Gezien de naar schatting grote aantallen reacties kunnen niet alle kandidaten worden uitgenodigd. Deze mail dient ten minste de volgende informatie te bevatten:

- Naam huurder(s)

- Toelichting samenstelling gezelschap

- Bruto jaarinkomen huurder(s)

Reacties welke niet aan deze eisen voldoen worden niet in behandeling genomen.

Uitnodiging op volgorde van binnenkomende mail en voor een bezichtigingsronde geldt: vol=vol

Na bezichtiging wordt gescreend op inkomen en betrouwbaarheid in diverse (openbare) registers. Huurder dient deze screening volledig en succesvol te doorlopen en af te ronden met 5 sterren, de beste score in onze screeningstool (Properize). De keuze om de woning aan kandidaten te verhuren is geheel aan eigenaar woning. Indien meerdere kandidaten de screening succesvol doorlopen, wordt de keuze gebaseerd op zowel inkomen, screening als persoonlijke situatie huurder. U heeft als huurder de mogelijkheid uw persoonlijke situatie toe te lichten tijdens de screening.

Kandidaten die de woning niet krijgen toegewezen na screening, hebben het recht op nadere uitleg en uiteraard kunnen zij het screeningsrapport inzien.

LET OP: Rotsvast behartigt de belangen van eigenaar, welke belang heeft bij verhuur per beschikbare datum. Bij een volledig doorlopen screening zal Rotsvast een dossier direct voorstellen aan eigenaar. Indien een dossier reeds is geaccepteerd, worden dossiers die hierna volledig binnenkomen niet meer meegenomen in het proces. Het is de verantwoordelijkheid van kandidaat-huurders om zo snel mogelijk een compleet dossier aan te leveren. Rotsvast zal huurders niet actief informeren over de voortgang van het lopende screeningsproces van andere kandidaat-huurders. In een overspannen woningmarkt gaat Rotsvast er van uit dat kandidaat-huurder zich bewust zijn van het belang om tijdig te handelen.

Heeft u interesse in deze huurwoning? Neem dan contact op via e-mail met Rotsvast Leiden voor het maken van een afspraak.

Details

  • Kale huur โ‚ฌ1.650
  • Totale huur Servicekosten โ‚ฌ1.650 Inbegrepen
  • Overige kosten Gas/Water Water Elektriciteit Internet Televisie - Niet inbegrepen Niet inbegrepen Niet inbegrepen Niet inbegrepen Niet inbegrepen
  • Borg โ‚ฌ1.650
  • Energielabel A++++
  • Type Appartement, Bovenwoning, Appartement
  • Nieuwbouw Nee
  • Eindniveau Bestaande bouw
  • Aantal kamers 2
  • Aantal slaapkamers 1
  • Oppervlakte 50 mยฒ
  • Balkon Ja
  • Dakterras Nee
  • Parkeren Betaald parkeren, Parkeervergunningen
  • Inclusief BTW Nee
  • Roken Nee
  • Huisdieren toegestaan Nee
Registreren

Schrijf je in om op de hoogte gehouden te worden van nieuw aanbod.

Inschrijven
Betrokken bij jouw vastgoed

Rotsvast is meer dan een dienstverlener. Wij zijn een partner die met je meedenkt.

Ontdek onze aanpak

In de buurt

Filter op faciliteiten
Leiden

Op afspraak

Direct informatie aanvragen?