Leiden

Kruidenhof 23

  • 49mยฒ
  • 1
€1.695 p.m. excl

Beschrijving

KRUIDENHOF 23, LEIDEN

LET OP!! DE FOTO'S ZIJN IMPRESSIE FOTO'S EN GEVEN EEN BEELD VAN HOE DE WONING ERUIT ZIET.

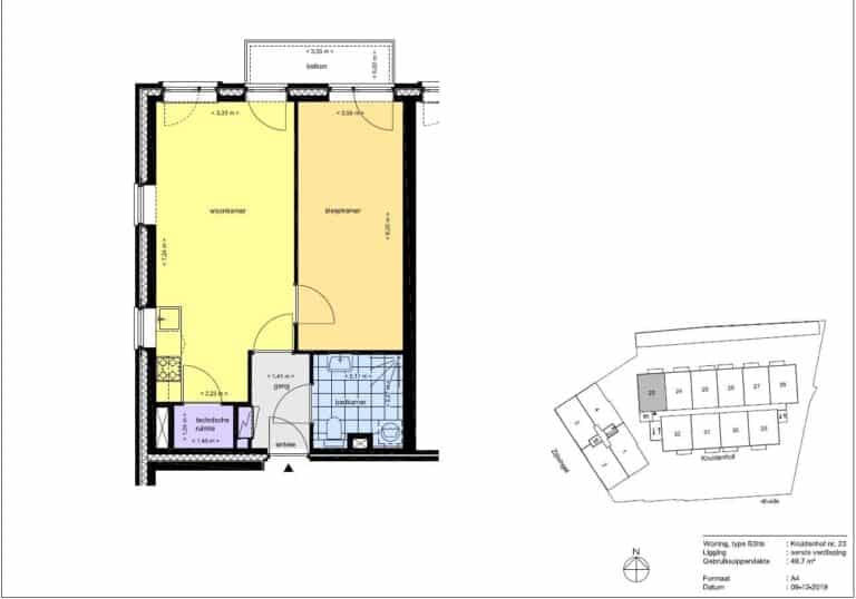
Op de 1e etage gelegen van het nieuwbouwcomplex ''DE RUYTER'' staat dit gestoffeerde 2-kamer (1 slaapkamer) appartement aan de achterzijde van gebouw B met luxe keuken, badkamer en eigen balkon.

Het liefst willen we het allemaal. Duurzaam buiten wonen en toch vlakbij de stad. Die wens wordt werkelijkheid bij โ€De Ruyterโ€ in Leiden. Wonen aan / buiten de singel maar toch minder dan vijf minuten fietsen, zo dichtbij is het bruisende hart van Leiden. Een nieuwbouwcomplex met 46 huurappartementen ( 2 en 3 kamer) in Leiden.

De woningen zijn verdeeld over 2 gebouwen (Gebouw A en Gebouw B). Gebouw A aan de Zijlsingel zijde is geheel ontworpen in de sfeer van de aangrenzende percelen. Hierdoor is de beleving van het gebouw authentiek. De buitenmuren zijn opgetrokken uit een baksteen die past in het straatbeeld.

Indeling:
Entree aan de zijkant van het gebouw met bellenplateau en brievenbussen. Entree met trap of lift naar de 1e etage. Binnenkomst in hal met toegang tot de verschillende vertrekken. Lichte woonkamer doordat het een hoekwoning betreft met luxe openkeuken voorzien van vaatwasser, koelkast, inductie kookplaat, afzuigkap en combi-magnetron. Luxe badkamer met inloopdouche, wastafel, toilet designradiator en wasmachine aansluiting. Vanuit de woonkamer is er toegang tot de slaapkamer.

Kenmerken:
De woningen worden gebouwd met een epc norm van minder dan 0,4. met behulp van zonnepanelen en of warmtepomp bereiken ze een energielabel van a++. dit betekent een lage energierekening van uw energiebedrijf. Alle woningen zijn ingepakt met isolatie, waardoor geluid en warmte / koude binnen je eigen woning blijft. Alle ramen worden voorzien van isolerende hr++ beglazing. Door de gehele woning ligt vloerverwarming. De constructie van het gebouw is zeer degelijk met onder andere betonnen vloeren.

Opleveringsniveau:
- PVC vloer
- Wandafwerking met renovlies behang en gesaust
- Volledig ingerichte keukens met vaatwasser, inductiekookplaat, combi magnetron, koelkast
- Badkamers met douche en wastafel
- Raambekleding
- Plafondverlichting

Bijzonderheden:
- Huurprijs van โ‚ฌ 1.695,- is excl. elektra, water en TV/Internet
- Bijkomende verplichte kosten van โ‚ฌ 78,- per maand voor servicekosten
- Bijkomende verplichte kosten van โ‚ฌ 95,57- voor contract met InWarmte
- Beschikbaar per 1 februari 2026

Details

  • Startdatum Per direct beschikbaar
  • Kale huur โ‚ฌ1.695
  • Totale huur Servicekosten โ‚ฌ1.695 Inbegrepen
  • Overige kosten Gas/Water Water Elektriciteit Internet Televisie - Niet inbegrepen Niet inbegrepen Niet inbegrepen Niet inbegrepen Niet inbegrepen
  • Borg โ‚ฌ1.695
  • Energielabel A
  • Type Appartement, Bovenwoning, Appartement
  • Nieuwbouw Nee
  • Eindniveau Bestaande bouw
  • Aantal kamers 2
  • Aantal slaapkamers 1
  • Oppervlakte 49 mยฒ
  • Balkon Ja
  • Dakterras Nee
  • Parkeren Betaald parkeren, Parkeervergunningen
  • Inclusief BTW Nee
  • Roken Nee
  • Huisdieren toegestaan Nee
Betrokken bij jouw vastgoed

Rotsvast is meer dan een dienstverlener. Wij zijn een partner die met je meedenkt.

Ontdek onze aanpak

In de buurt

Filter op faciliteiten
Leiden

Op afspraak

Direct informatie aanvragen?