Middelburg

Dampoortweg

  • 79mยฒ
  • 3

Beschrijving

Welkom bij de Dampoortweg 3 in Middelburg!

Bent u op zoek naar rust, gezelligheid en comfort? Deze charmante woning heeft het allemaal!

De woning is gelegen aan de rand van het stadscentrum van Middelburg en biedt u hierdoor alle voordelen van de stad binnen handbereik. Binnen 10 minuten lopen staat u midden in het bruisende centrum en kunt u genieten van de gezelligheid die deze omgeving te bieden heeft.

Dankzij de dichtbijgelegen uitvalswegen bent u binnen no-time op de snelweg en onderweg naar andere delen van Zeeland of daarbuiten.

Verder is de omgeving voorzien van veel groen en liggen de bolwerken om de hoek.

Begane grond:

Vanuit de entreehal heeft u toegang tot de ruime, doorzonwoonkamer die is voorzien van grote raampartijen, een authentieke haard en openslaande deuren die u toegang verlenen tot de heerlijke stadstuin. Daanaast grenst aan de woonkamer de open keuken die voorzien is van alle gemakken.

Via de keuken komt u terecht in de ruime bijkeuken die vervolgens weer toegang biedt tot een van de twee badkamers van de woning. Deze badkamer is voorzien van een douchekabine, een wastafelmeubel en een toilet.

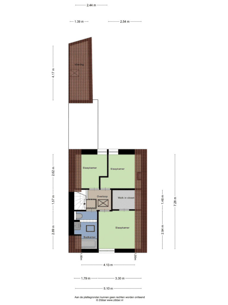
Eerste verdieping:

Vanuit de woonkamer kunt u de trap omhoog nemen die uitkomt op de overloop van de bovenverdieping. Deze verdieping beschikt over een grotere slaapkamer die is voorzien van een ruime inloopkast. Daarnaast zijn er nog 2 kleine slaapkamers aanwezig die beiden een spectaculair uitzicht bieden op de achtertuin en de Oostkerk.

Op deze verdieping bevindt zich ook de tweede badkamer van die woning die is voorzien van een toilet, bad met douche en wastafelmeubel.

Tuin:

De achtertuin biedt u volop privacy en comfort en een iconisch uitzich op de welbekende Oostkerk van Middelburg - een uitzicht wat nooit verveelt! Verder beschikt de tuin over een bergschuur die voldoende ruimte biedt voor opslag.

Laat je verrassen door de mogelijkheden en de sfeer van deze unieke plek. Dampoortweg 3 is klaar voor een nieuwe eigenaar. Wordt u dat?

Details

  • Kale huur -
  • Totale huur Servicekosten - Inbegrepen
  • Overige kosten Gas/Water Water Elektriciteit Internet Televisie - Niet inbegrepen Niet inbegrepen Niet inbegrepen Niet inbegrepen Niet inbegrepen
  • Borg -
  • Type Woonhuis, Eengezinswoning, Tussenwoning
  • Nieuwbouw Nee
  • Eindniveau Bestaande bouw
  • Aantal kamers 4
  • Aantal slaapkamers 3
  • Oppervlakte 79 mยฒ
  • Balkon Nee
  • Dakterras Nee
  • Parkeren Parkeervergunningen
  • Inclusief BTW Nee
  • Roken Nee

Plattegronden

Betrokken bij jouw vastgoed

Rotsvast is meer dan een dienstverlener. Wij zijn een partner die met je meedenkt.

Ontdek onze aanpak

In de buurt

Filter op faciliteiten
Middelburg

Maandag t/m vrijdag van 9:00 - 12.30 en van 13.00 - 17:30.

Direct informatie aanvragen?