Utrecht

Klaverstraat 55

  • 88m²
  • 4
€2.650 p.m. excl

Beschrijving

Gezinswoning met 4 slaapkamer in Wittevrouwen!

Deze woning mag niet gedeeld worden!

Ligging:
Gelegen in de wijk Wittevrouwen. Eén van de leukste wijken in Utrecht.

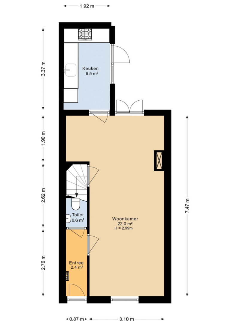
Indeling:
Entree, hal, toilet met fontein, woonkamer ca. 7,70m x 3,10m / 4,10m met open haard, openslaande deuren naar tuin op zuid en deur naar trap naar 1e etage.
Keuken met fraai keukenblok, inbouw koelkast, vriezer, oven, magnetron, 5 pits kookplaat, rvs afzuigkap, stenen aanrechtblad, deur naar tuin.

1e etage:
Overloop, slaapkamer voor ca. 4,10m x 2,73m, slaapkamer achter ca. 4,10m x 1,95m, fraaie badkamer met wasmachineaansluiting en wasdrogeraansluiting, douche cabine, 2e toilet en vaste wastafel.

2e etage:
Grote overloop ca. 4,10m x 2,04m, slaapkamer ca. 2,60m x 2,04 en 2e slaapkamer voor ca. 2,60m x 2,04m.

Bijzonderheden

  • Zonnige tuin van ca. 8m diep x 4,20m breed gunstig gelegen op zuid;
  • Woonoppervlakte ca. 88 m², door de slimme verbouwing zeer praktisch ingedeeld;
  • Op 2e etage een dakkapel aan de achterzijde, voor een dakopbouw;
  • Opbergruimte achter schotten over de gehele breedte van het huis aan achterzijde;
  • Uitstekend onderhouden;
  • Gelegen in een dorpse omgeving met alle voorzieningen op loopafstand;
  • Uitvalswegen en centrum zeer nabij.

Details

  • Startdatum Beschikbaar vanaf 01-01-2026
  • Kale huur €2.650
  • Totale huur Servicekosten €2.650 Inbegrepen
  • Overige kosten Gas/Water Water Elektriciteit Internet Televisie - Niet inbegrepen Niet inbegrepen Niet inbegrepen Niet inbegrepen Niet inbegrepen
  • Borg €2.650
  • Energielabel C
  • Type Woonhuis, Eengezinswoning, Tussenwoning
  • Nieuwbouw Nee
  • Eindniveau Bestaande bouw
  • Aantal kamers 5
  • Aantal slaapkamers 4
  • Oppervlakte 88 m²
  • Balkon Nee
  • Dakterras Nee
  • Parkeren Parkeervergunningen
  • Inclusief BTW Ja
  • Roken Nee
  • Huisdieren toegestaan Nee

360-video

Plattegronden

Inschrijven

Schrijf je in om op de hoogte gehouden te worden van nieuw aanbod.

Naar inschrijving
Betrokken bij jouw vastgoed

Rotsvast is meer dan een dienstverlener. Wij zijn een partner die met je meedenkt.

Ontdek onze aanpak

In de buurt

Filter op faciliteiten
Utrecht

Maandag t/m vrijdag van 09:00 tot 18:00.

Direct informatie aanvragen?