Vlaardingen

Hogewerf

  • 191mยฒ
  • 3
€3.995 p.m. excl

Beschrijving

Uniek Penthouse met Spectaculair Uitzicht en Drie Woonlagen

Op de bovenste verdiepingen van het hoogste gebouw van Vlaardingen bevindt zich dit indrukwekkende penthouse van ca. 191 mยฒ, volledig gerenoveerd in 2017 en tot in detail afgewerkt. Verdeeld over de 21e, 22e en 23e verdieping geniet u hier van panoramisch uitzicht, ongeรซvenaarde luxe en volop leefruimte โ€“ op slechts enkele minuten van bruisend Rotterdam.

Luxe Woonruimtes en Designkeuken
De royale woonkamer straalt elegantie uit met een natuurstenen vloer, maatwerkkasten en directe toegang tot het zonnige dakterras. De open keuken is een droom voor kookliefhebbers: voorzien van topklasse Miele-apparatuur, een exclusief keukenblad en een Samsung Wall TV. Vloerverwarming, vloerkoeling en een nieuwe airco (2023) garanderen maximaal comfort.

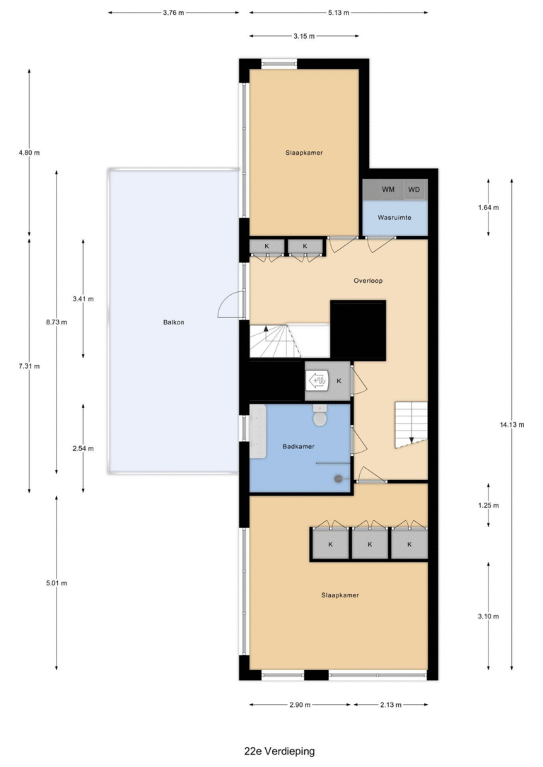
Slaapverdieping en Badkamer
De masterbedroom is uitgerust met maatwerkkasten, een verhoogd bed, luxe dressoir en Samsung TV. De tweede slaapkamer is ruim en licht. De badkamer, volledig uitgevoerd in marmer, biedt een royale inloopdouche met regendouche, een maatwerk wastafelmeubel en spiegelwand. Een aparte wasruimte met nieuwe wasmachine en droger (2023) is aanwezig.

Torenkamer & Dakterrassen
De 23e verdieping herbergt de iconische torenkamer met 360ยฐ uitzicht โ€“ een unieke privรฉplek. De twee grote dakterrassen maken dit penthouse ideaal voor buitenleven op grote hoogte.

Overige Pluspunten

Volledig gemeubileerd, grotendeels nieuwe meubels (2023/2024)

Philips Hue verlichting door de hele woning

Parkeerplaats te huur (ca. โ‚ฌ 60 p.m.)

Berging op de begane grond

Centrale entree met cameratoezicht en video-installatie

Wonen op het hoogste niveau van Vlaardingen
Hier combineert u luxe, comfort en een spectaculair uitzicht โ€“ een woning waar u direct kunt intrekken en elke dag geniet van het beste dat wonen te bieden heeft.

Details

  • Startdatum Per direct beschikbaar
  • Kale huur โ‚ฌ3.995
  • Totale huur Servicekosten โ‚ฌ3.995 Inbegrepen
  • Overige kosten Gas/Water Water Elektriciteit Internet Televisie - Niet inbegrepen Niet inbegrepen Niet inbegrepen Niet inbegrepen Niet inbegrepen
  • Borg โ‚ฌ3.995
  • Energielabel B
  • Type Appartement, Penthouse
  • Nieuwbouw Nee
  • Eindniveau Bestaande bouw
  • Aantal kamers 4
  • Aantal slaapkamers 3
  • Oppervlakte 191 mยฒ
  • Balkon Nee
  • Dakterras Ja
  • Parkeren Parkeergarage, Betaald parkeren, Parkeervergunningen
  • Inclusief BTW Ja
  • Roken Nee
  • Huisdieren toegestaan Nee

Plattegronden

Betrokken bij jouw vastgoed

Rotsvast is meer dan een dienstverlener. Wij zijn een partner die met je meedenkt.

Ontdek onze aanpak

In de buurt

Filter op faciliteiten
Rotterdam

Maandag t/m donderdag van 09:00 tot 16:00.

Direct informatie aanvragen?