Utrecht

Cremerplein 55

  • 158mยฒ
  • 5
€2.950 p.m. excl

Beschrijving

Enorm 7 kamer gezinshuis in Nieuw Engeland.

Ligging:
Gelegen in Nieuw Engeland. Net achter de Vleutensweg. Gelegen aan een leuk pleintje met speeltuinen. Vanaf Vleutensweg is het 10 minuten fietsen naar de Neude of het centrum van Leidsche Rijn. Openbaar vervoer, supermarkten en winkels liggen in de directe omgeving.

Indeling:
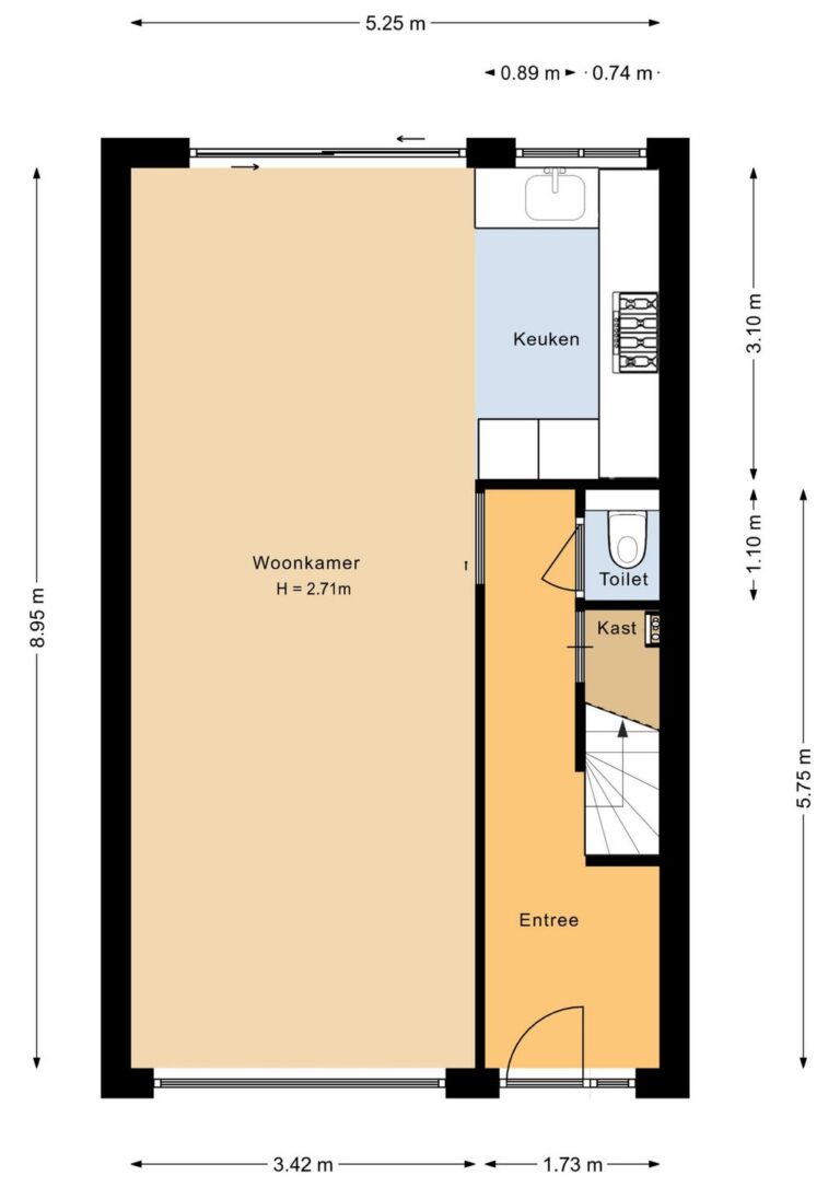
Entree woning. Hal met garderobe. Toilet. Woonkamer met schuifpui naar de achtertuin op het zuiden. Berging van 4m2. Openkeuken voorzien van inbouw apperatuur, zoals: formuis, vaatwasser, afzuigkap en koel vries combinatie.

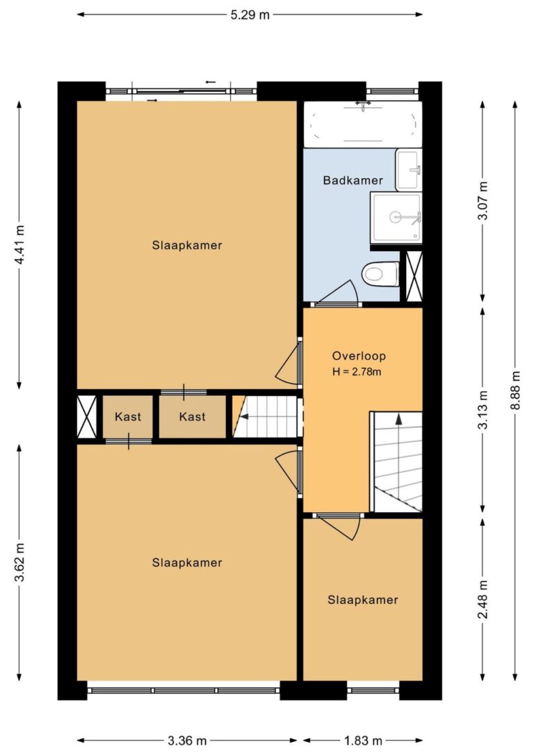
1e verdieping:
Fraaie overloop. Badkamer met toilet, wastafel, ligbad en douchecabine. 2 ruimte slaapkamers met inbouwkasten, 1 aan de voorzijde en 1 aan de achterzijde. 3e kamer aan de voorzijde, ideaal als werkruimte.

2e verdieping:
Overloop. Ruime slaapkamer aan de voorzijde over de volle breedte. Kleinere kamer aan de achterzijde. Wasruimte met wastafel, wasmachine, droger en douchecabine. Trap naar zolder etage met zolderkamer.

Bijzonderheden:
- geen woningdelers
- geen studenten

Details

  • Startdatum Beschikbaar vanaf 01-12-2025
  • Kale huur โ‚ฌ2.950
  • Totale huur Servicekosten โ‚ฌ2.950 Inbegrepen
  • Overige kosten Gas/Water Water Elektriciteit Internet Televisie - Niet inbegrepen Niet inbegrepen Niet inbegrepen Niet inbegrepen Niet inbegrepen
  • Borg โ‚ฌ2.950
  • Energielabel C
  • Type Woonhuis, Eengezinswoning, Tussenwoning
  • Nieuwbouw Nee
  • Eindniveau Bestaande bouw
  • Aantal kamers 6
  • Aantal slaapkamers 5
  • Oppervlakte 158 mยฒ
  • Balkon Nee
  • Dakterras Nee
  • Parkeren Betaald parkeren, Parkeervergunningen
  • Inclusief BTW Nee
  • Roken Nee
  • Huisdieren toegestaan Nee

Plattegronden

Inschrijven

Schrijf je in om op de hoogte gehouden te worden van nieuw aanbod.

Naar inschrijving
Betrokken bij jouw vastgoed

Rotsvast is meer dan een dienstverlener. Wij zijn een partner die met je meedenkt.

Ontdek onze aanpak

In de buurt

Filter op faciliteiten
Utrecht

Maandag t/m vrijdag van 09:00 tot 18:00.

Direct informatie aanvragen?