Hoofddorp

Boschplaat

  • 170m²
  • 3
€2.950 p.m. excl

Description

Modern and Fully Furnished Family Home in an Ideal Location in Hoofddorp

Well-maintained, modern family home with a living area of approximately 170 m², spread over three floors. The property features three (!) spacious bedrooms, two bathrooms, and a generous living room with an open-plan kitchen. Outdoor space is abundant: there is both a sunny backyard and a rooftop terrace, both facing northwest. The property also includes a private driveway/parking space.

Location
Situated in a quiet and easily accessible residential area in Hoofddorp, with all amenities within easy reach. Supermarkets, shops, and other facilities are nearby. The Optimist International School is within walking distance.

The property is easily accessible by car and public transport. Nearby highways (A4, A5, and A9) provide quick connections to Amsterdam, Haarlem, and Schiphol Airport. Hoofddorp train station offers direct connections to Amsterdam Zuid/WTC and other destinations. Various bus routes are also available in the immediate vicinity.

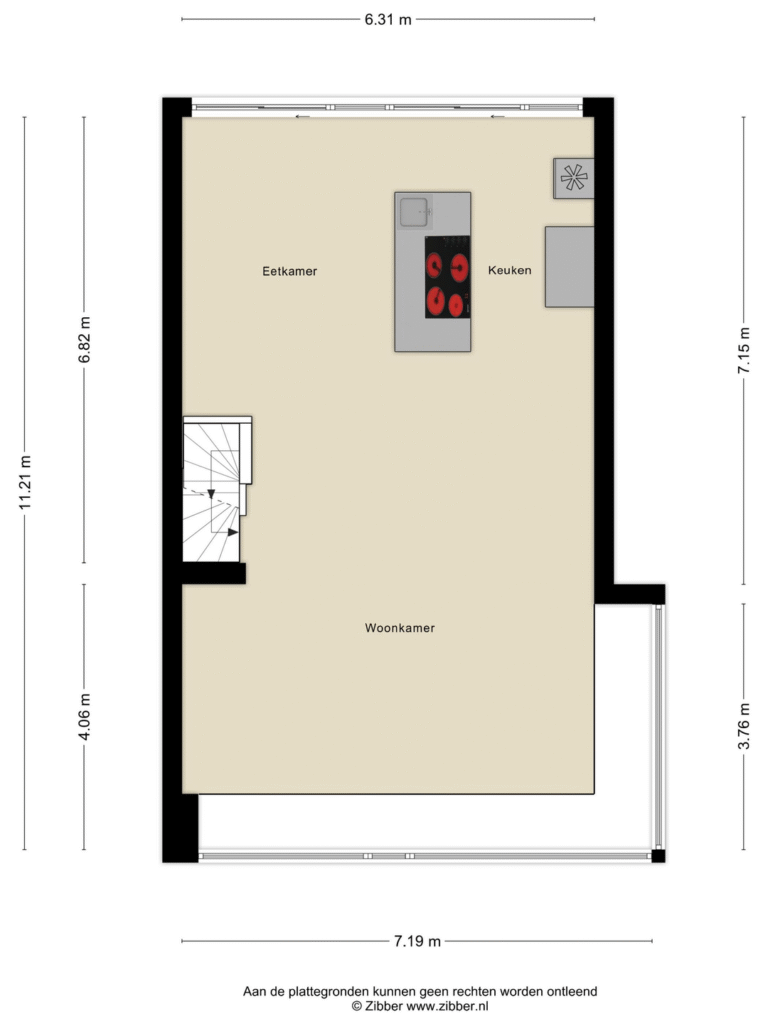
Layout
Ground floor: Entrance with access to a hallway/utility room, a spacious room next to the front door (currently used as storage but also suitable as an additional bedroom or home office), and the first bedroom with an ensuite bathroom including a bathtub. The backyard, with storage shed and rear access, can be reached through this bedroom.

First floor: Generous living room with open kitchen, fully equipped with built-in appliances. The living room offers an unobstructed view of greenery at the front and a view of the garden at the back.
Please note: the kitchen unit will be upgraded; a new base cabinet will be installed with an integrated oven. In addition, a brand-new dishwasher will be placed.

Second floor: Spacious second bedroom with ensuite bathroom and access to the rooftop terrace.

Key Features

  • Living area approx. 170 m²
  • 3 bedrooms
  • 2 bathrooms
  • Garden and rooftop terrace facing northwest
  • Fully furnished
  • Spread over three levels
  • Private parking space
  • Available as of August 1, 2025 (Model C rental agreement)

Financial Details
Rent: €2,950 per month (incl. furniture/inventory, excl. utilities)
Security deposit: 2 months' rent

For more information or to express interest, feel free to contact our Amstelveen office:
T: +31(0)20 503 65 60
E: amstelveen@rotsvast.nl
W: https://www.rotsvast.nl

Our general terms and conditions apply.

Features

  • Start date Available from 01-08-2025
  • Base rent €2.950
  • Total rent Service costs €2.950 Included
  • Other costs Gas/Heat Water Electricity Internet Television - Not included Not included Not included Not included Not included
  • Deposit €5.900
  • Energy label B
  • Type House, Family house, Corner house
  • New construction No
  • Finish level Resale
  • Number of rooms 4
  • Number of bedrooms 3
  • Surface area 170 m²
  • Balcony No
  • Roof terrace No
  • Parking Parking permits, On site, Public parking
  • Including VAT No
  • Smoking No
  • Pets allowed In consultation
Free search

Are you wondering when a rental property that perfectly suits your needs will become available?

More information
Committed to your property

Rotsvast is more than a service provider - we are a partner who thinks with you.

Discover our approach

In the neighbourhood

Filter by facilities
Amstelveen

Monday to Friday from 09:00 to 18:00. Saturday by appointment.

Request information immediately?