Maastricht

Oude Molenweg

  • 180mยฒ
  • 5
€2.750 p.m. excl

Beschrijving

Te huur op de Henri Morganstraat in VALKENBURG:

Te Huur prachtige vrijstaande 5 slaapkamer woning met 2 badkamers, grote tuin en garage:

De nieuwbouwwoning ligt aan de doodlopende Henry Morgan straat en maakt deel uit van het Vila Nova project.

De woning ligt op een grond stuk van 415 m2 en heeft een woonoppervlak van 180 m2 met daarnaast nog een aanliggende garage/berging van 25 m2.

Aan de voorzijde is ruimte voor het parkeren van 2 autoโ€™s op eigen terrein, daarnaast is er nog een parkeervergunning beschikbaar.

Openbaar vervoer, trein en busstation liggen op 200 m en het winkelcentrum op 100 m afstand.

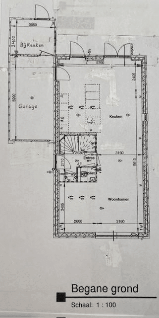
De woning bestaat uit drie woonlagen. Op de begane grond bevindt zich de entree met toegang tot toilet, garderobe, trap naar de eerste verdieping en toegang tot de 60 m2 grote woonkamer met open keuken.

De keuken is opgebouwd uit een groot eiland met o.a. spoelbak, vaatwasser en een bora inductie kookplaat. Verder is er een kasten wand van 3 m met o.a. een grote combi oven/magnetron, een grote koelkast met vriesdeel en veel opbergruimte.

Een deur en dubbele tuindeur bieden toegang tot een 20 m2 overdekt terras en tuin.

Verder is er vanuit de keuken ook toegang tot de berging/garage.

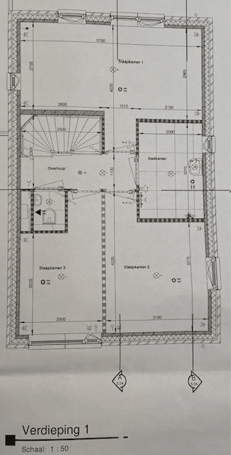
Op de eerste verdieping biedt een overloop toegang tot drie slaapkamers, de badkamer, een separaat toilet en de trap naar de tweede verdieping.

Op de tweede verdieping biedt de overloop toegang tot twee grote slaapkamers en de badkamer met toilet .

De woning is conform de laatste standaarden gebouwd en heeft een energielabel A+++ hetgeen gerealiseerd wordt door isolatie, warmtepomp, zonnepanelen, een WTW ventilatiesysteem en geen gasaansluiting.

Voor meer informatie kunt u bellen met 043-7600076 of mailen naar maastricht@rotsvast.nl

De woning is voor 5 jaar beschikbaar

Details

  • Startdatum Beschikbaar vanaf 01-11-2025
  • Kale huur โ‚ฌ2.750
  • Totale huur Servicekosten โ‚ฌ2.750 Inbegrepen
  • Overige kosten Gas/Water Water Elektriciteit Internet Televisie - Niet inbegrepen Niet inbegrepen Niet inbegrepen Niet inbegrepen Niet inbegrepen
  • Borg โ‚ฌ5.500
  • Energielabel A++++
  • Type Woonhuis, Herenhuis, Vrijstaande woning
  • Nieuwbouw Nee
  • Eindniveau Bestaande bouw
  • Aantal kamers 6
  • Aantal slaapkamers 5
  • Oppervlakte 180 mยฒ
  • Balkon Nee
  • Dakterras Nee
  • Parkeren Op eigen terrein
  • Inclusief BTW Nee
  • Roken Nee
  • Huisdieren toegestaan Nee

Plattegronden

Betrokken bij jouw vastgoed

Rotsvast is meer dan een dienstverlener. Wij zijn een partner die met je meedenkt.

Ontdek onze aanpak

In de buurt

Filter op faciliteiten
Maastricht

Maandag tot en met vrijdag van 09.00 uur tot 17.30 uur
Zaterdag gesloten
Zondag gesloten

Direct informatie aanvragen?