Breda

Dirk Hartogstraat

  • 77m²
  • 2
€1.750 p.m. excl

Beschrijving

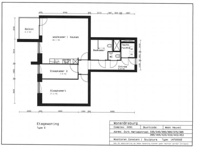
Dit appartement op de 3e verdieping (type E) heeft een totale woonoppervlakte van 77m² met oa. woonkamer/keuken van ca 32m2 en heeft 2 slaapkamers, en aparte toilet, badkamer, een technische ruimte en een balkon op het westen.

Dit appartement heeft een parkeerplaats naast het complex, een eigen berging, gemeenschappelijke fietsenberging en twee liften. Dit appartement is gesitueerd in de exclusieve woontoren "Constant" in een parkachtige omgeving aan de rand van het groene buitengebied van Breda, doch letterlijk op fietsafstand van het centrum. In de woning ligt een laminaatvloer welke ter overname is.

Begane grond
Hier treft u de entree aan van het complex. Dit betreft een afgesloten ruime centrale entree met de opstelling van de brievenbussen, het trappenhuis, 2 liften en toegang tot de bergingen

Hal/entree
De hal/ entree biedt toegang tot de living/keuken, badkamer, 2 slaapkamers, de toiletruimte, technische ruimte met aansluiting wasmachine.

Toiletruimte
De separate betegelde toiletruimte heeft een wandcloset en fonteintje.

Badkamer
Betegelde badkamer van ca. 6m² met douche, toilet en vaste wastafel.

Technische ruimte
In de technische ruimte treft u de mechanische ventilatie-unit vv van warmteterugwinfunctie aan..

Berging
Beneden in het gebouw is een privé berging aanwezig.

Het balkon (6,3m2) ligt op het westen

De keuken heeft een keramische kookplaat, combi-magnetron, vaatwasser, wasemkap en een inbouwkoelkast.

Er is een eigen parkeerplaats naast het complex gereserveerd.

Het complex is gelegen in het "Woonpark Sculptura", ten zuidwesten van Breda. Deze groene wijk met een geheel eigen karakter, grenst aan de ecologische zone "het Mastbos" en is daarmee onderdeel van de groene long die de bruisende Bredase binnenstad verbindt met het buitengebied. "Woonpark Sculptura" grenst aan het recentelijk aangelegde park en is tevens op korte afstand gesitueerd van de gezellige oude dorpskern van Princenhage.

Het centrum van Breda met haar royale voorzieningen niveau is op fietsafstand gelegen. Tevens is er een uitstekende busverbinding naar de omliggende woonwijken en het Centraal Station. Het rijkswegennet A16, A27, A58 en A59 is eenvoudig te bereiken.

De appartementen in dit complex worden volledig verwarmd door middel van vloerverwarming. Hierdoor zijn er geen radiatoren aanwezig, wat een extra ruimtelijk effect geeft. Dit klimaatsysteem zorgt ervoor dat het appartement op aangename temperatuur blijft, waarbij de temperatuur per ruimte instelbaar is. Dit appartement beschikt tevens over een comfort koeling systeem. Dat wil zeggen dat het koele water dat tijdens de zomer door de vloerleidingen wordt gepompt, de warmte uit de woning opneemt. Zo blijven alle ruimtes ook tijdens de warme zomerdagen op een aangename temperatuur. Voor de ventilatie binnen het appartement is een mechanische ventilatie met warmte-terugwininstallatie aanwezig.

  • Aan deze presentatie kunnen geen rechten ontleend worden.
    De woning wordt kaal opgeleverd. De vloer in de woning kan achter blijven om niet.
    De huurprijs is exclusief servicekosten (€ 39,76)

Details

  • Kale huur €1.750
  • Totale huur Servicekosten €1.750 Inbegrepen
  • Overige kosten Gas/Water Water Elektriciteit Internet Televisie - Niet inbegrepen Niet inbegrepen Niet inbegrepen Niet inbegrepen Niet inbegrepen
  • Borg €1.750
  • Type Appartement, Portiekflat, Appartement
  • Nieuwbouw Nee
  • Eindniveau Bestaande bouw
  • Aantal kamers 3
  • Aantal slaapkamers 2
  • Oppervlakte 77 m²
  • Balkon Ja
  • Dakterras Nee
  • Parkeren Op afgesloten terrein, Op eigen terrein, Openbaar parkeren
  • Inclusief BTW Nee
  • Roken Nee
  • Huisdieren toegestaan Nee
Betrokken bij jouw vastgoed

Rotsvast is meer dan een dienstverlener. Wij zijn een partner die met je meedenkt.

Ontdek onze aanpak

In de buurt

Filter op faciliteiten
Breda

Maandag t/m vrijdag van 9:00 tot 12:30 uur en van 13:00 tot 17:30 uur.

Direct informatie aanvragen?