Gouda

Burgemeester van Dijkesingel

  • 132mยฒ
  • 4
€2.000 p.m. excl

Beschrijving

ZEER RUIME GEMEUBILEERDE GEZINSWONING BESCHIKBAAR VOOR 6 MAANDEN IN NIEUWBOUWWIJK WESTERGOUWE TE GOUDA

Aan de Burgemeester Dijkesingel te Gouda wordt u deze ruime gezinswoning/hoekwoning aangeboden voor tijdelijke verhuur van 6 maanden in verband met het verblijf van de verhuurder in het buitenland. De woning wordt volledig gemeubileerd aangeboden en beschikt over vier ruime slaapkamers. De vijfde slaapkamer blijft afgesloten voor opslag van persoonlijke zaken van de verhuurder.

Door de woning gemeubileerd aan te bieden voor een korte huurperiode, is deze woning uitermate geschikt voor huurders met een tijdelijke woonwens ter overbrugging. Iets voor u? Lees dan verder!

DE WONING

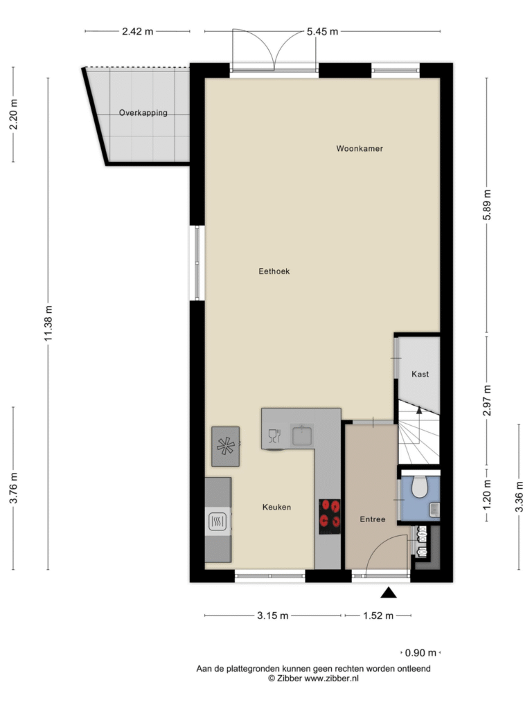
De begane grond van de woning kenmerkt zich door een zeer ruime woonkamer met zithoek en eethoek. De kamer is zeer licht dankzij het natuurlijke lichtinval aan drie zijden van de woonkamer. De openslaande deuren bieden direct toegang tot de riante achtertuin met achterom.

De keuken is gelegen aan de voorzijde van de woning en beschikt over meer dan voldoende kastruimte. Voorzien van een elektrische kookplaat, RVS-afzuigkap, koelkast, vriezer, vaatwasser, magnetron en oven is de keuken zeer royaal als het gaat om voorzieningen. Uiteraard willen wij het ruime schiereiland met bar (en bijpassende krukken) niet onbenoemd laten.

In de hal, voorzien van trapopgang naar de eerste verdieping, vindt u tevens een apart toilet en garderobe.

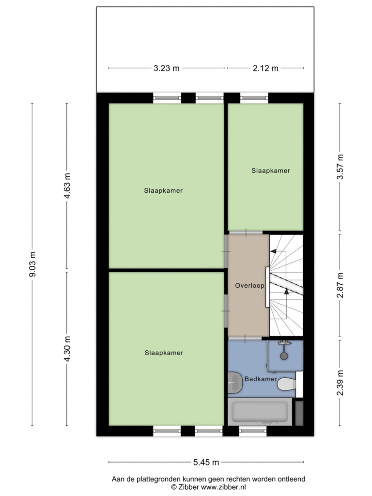
Op de eerste verdieping vindt u drie ruime slaapkamers, waaronder de master bedroom aan de voorzijde van de woning. De vierde slaapkamer bevindt zich op de zolderverdieping. De vijfde slaapkamer, eveneens op de zolderverdieping, wordt afgesloten en gebruikt voor opslag van persoonlijke spullen van de verhuurder. Alle slaapkamers zijn zonder uitzondering voorzien van airconditioning.

De badkamer, gelegen op de eerste verdieping, is voorzien van een douche, bad, wastafel en toilet, en is โ€“ net als de keuken โ€“ zeer royaal in haar voorzieningen.

Aan de achterzijde en zijkant van de woning bevindt zich een zeer ruime achtertuin, gelegen op het noord-noordwesten. De tuin is voorzien van een houten berging, een overkapping ten behoeve van het stallen van fietsen en een achterom.

BIJZONDERHEDEN

  • Huurovereenkomst voor maximaal 5 a 6 maanden middels een huurovereenkomst met diplomatenclausule- de woning is beschikbaar vanaf 29-10-2025 en beschikbaar tot en met 29-03-2026. In overleg is dit termijn op voorhand te verlengen naar 30-04-2026
  • Deze huurwoning beschikt over energielabel A
  • Deze huurwoning beschikt over een actuele WWS-puntentelling en valt in de vrije sector. Een actuele telling wordt aan de nieuwe huurder voor aanvang van de huurperiode ter beschikking gesteld
  • Deze huurwoning wordt gemeubileerd aangeboden
  • Deze huurwoning beschikt over vier ruime slaapkamers, allen ingericht als slaapkamer

SELECTIEPROCEDURE

Rotsvast bepaalt op basis van binnenkomende e-mails welke kandidaten het eerst hebben gereageerd. Gezien het naar verwachting grote aantal reacties kunnen niet alle kandidaten worden uitgenodigd. Deze e-mail dient ten minste de volgende informatie te bevatten:

  • Naam huurder(s)
  • Toelichting samenstelling gezelschap
  • Bruto jaarinkomen huurder(s)

Reacties die niet aan deze eisen voldoen, worden niet in behandeling genomen.

Uitnodiging vindt plaats op volgorde van binnenkomst van de e-mails. Voor de bezichtigingsronde geldt: vol = vol.

Na bezichtiging wordt gescreend op inkomen en betrouwbaarheid in diverse (openbare) registers. De huurder dient deze screening volledig en succesvol te doorlopen en af te ronden met 5 sterren, de hoogste score in onze screeningstool (Properize). De keuze om de woning aan kandidaten te verhuren is geheel aan de eigenaar van de woning. Indien meerdere kandidaten de screening succesvol doorlopen, wordt de keuze gebaseerd op zowel inkomen, screening als persoonlijke situatie van de huurder. U heeft als huurder de mogelijkheid uw persoonlijke situatie toe te lichten tijdens de screening.

Kandidaten die de woning niet toegewezen krijgen na de screening, hebben recht op nadere uitleg en kunnen uiteraard het screeningsrapport inzien.

LET OP

Rotsvast behartigt de belangen van de eigenaar, die belang heeft bij verhuur per beschikbare datum. Bij een volledig doorlopen screening zal Rotsvast een dossier direct voorstellen aan de eigenaar. Indien een dossier reeds is geaccepteerd, worden dossiers die hierna volledig binnenkomen niet meer meegenomen in het proces. Het is de verantwoordelijkheid van kandidaat-huurders om zo snel mogelijk een compleet dossier aan te leveren. Rotsvast zal huurders niet actief informeren over de voortgang van het lopende screeningsproces van andere kandidaat-huurders. In een overspannen woningmarkt gaat Rotsvast ervan uit dat kandidaat-huurders zich bewust zijn van het belang om tijdig te handelen.

Heeft u interesse in deze woning? Neem dan contact op met Rotsvast Gouda voor het maken van een afspraak!

Details

  • Startdatum Beschikbaar vanaf 01-11-2025
  • Kale huur โ‚ฌ2.000
  • Totale huur Servicekosten โ‚ฌ2.000 Inbegrepen
  • Overige kosten Gas/Water Water Elektriciteit Internet Televisie - Niet inbegrepen Niet inbegrepen Niet inbegrepen Niet inbegrepen Niet inbegrepen
  • Borg โ‚ฌ2.000
  • Energielabel A
  • Type Woonhuis, Eengezinswoning, Hoekwoning
  • Nieuwbouw Nee
  • Eindniveau Bestaande bouw
  • Aantal kamers 5
  • Aantal slaapkamers 4
  • Oppervlakte 132 mยฒ
  • Balkon Nee
  • Dakterras Nee
  • Parkeren Openbaar parkeren
  • Inclusief BTW Nee
  • Roken Nee
  • Huisdieren toegestaan In overleg

Plattegronden

Betrokken bij jouw vastgoed

Rotsvast is meer dan een dienstverlener. Wij zijn een partner die met je meedenkt.

Ontdek onze aanpak

In de buurt

Filter op faciliteiten
Gouda

Maandag t/m vrijdag van 09:00 tot 17:00.

Direct informatie aanvragen?