Utrecht

Biltstraat 95 A

  • 52mยฒ
  • 1
€1.580 p.m. excl

Beschrijving

In een Rijksmonument prachtig geheel gerenoveerd en nieuw ingericht appartement.

VIDEO OP ONZE EIGEN WEBSITE

Ligging:
Gelegen in de Biltstraat. Openbaar vervoer op loopafstand. De Biltstraat heeft 2 supermarkten, diverse gezellige winkels en restaurantjes. Aan het einde van de Biltstraat begint de binnenstad en Utrecht CS is 5 minuten fietsen. Ideaal gelegen ten opzichte van de A27/A28 en de Waterlinieweg naar de A12.

Pand:
Het pand is een prachtig gerenoveerd Rijksmonument. Fraaie entree, met royale hal. De hal is voorzien van marmeren vloer en klassieke trappen. Het trappenhuis bied toegang tot 5 appartementen op de 1ste en 2de etage.

Appartement:
Gelegen op de 1ste etage een schitterend 2 kamer appartement. Het appartement kenmerkt zich door een klassieke hoge plafonds, ramen en een open indeling. Het appartement is schitterend gerenoveerd met behoud van sfeervolle klassieke elementen.

Indeling:
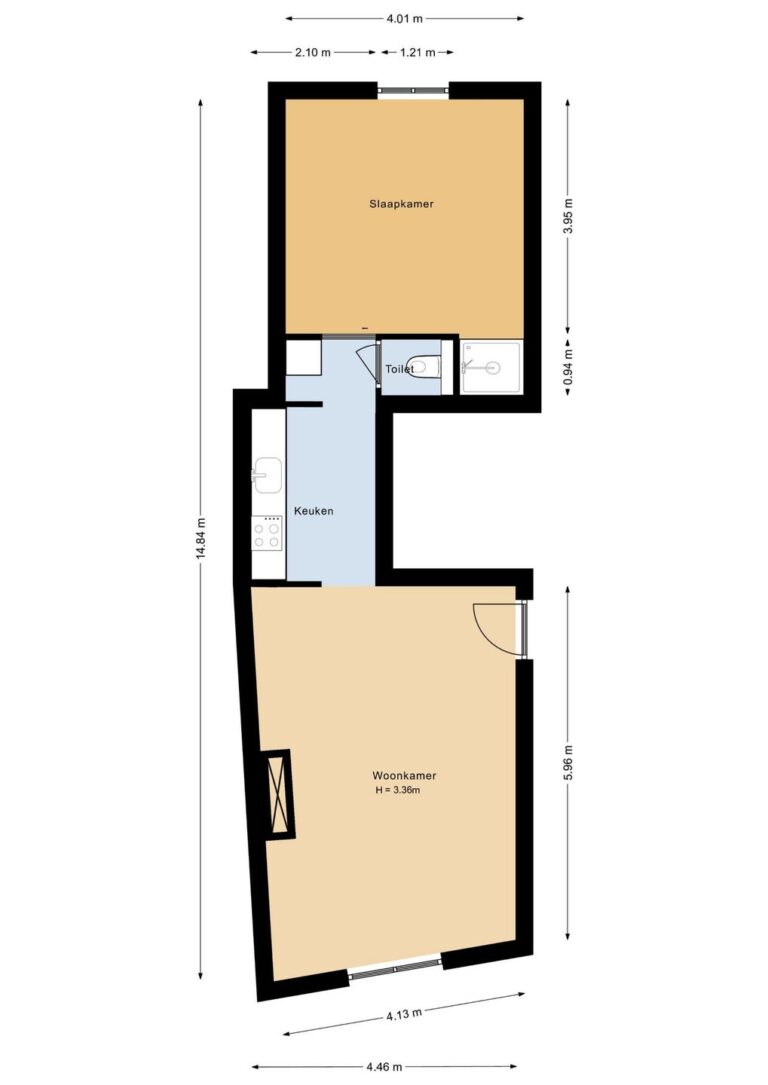
Entree via trappenhuis. Opgang naar de 1ste etage. Entree appartement. Garderobe, Video-intercom. Open woonkamer met klassieke schouw. Aangrenzend de aparte slaapkamer met 2 persoonsbed (160cm x 200 cm) aan de achterzijde, met fraai uitzicht op de mooie binnentuinen. Douchecabine voorzien van hardglazen schuifdeuren en wastafel met spiegel en meubel. Moderne keuken voorzien van fornuis, afzuigkap, oven en koel/vriescombinatie. Aparte WC met zwevend toilet.

Bijzonderheden:

  • Gemeubileerd te huur.
  • Vergoeding voor energie, kabel TV en internet 130,00 per maand
  • Totale huur van 1710 euro per maand

Details

  • Kale huur โ‚ฌ1.580
  • Totale huur Servicekosten โ‚ฌ1.710 Inbegrepen
  • Overige kosten Gas/Water Water Elektriciteit Internet Televisie โ‚ฌ130 Inbegrepen Inbegrepen Inbegrepen Niet inbegrepen Niet inbegrepen
  • Borg โ‚ฌ2.400
  • Type Appartement, Tussenverdieping, Appartement
  • Nieuwbouw Nee
  • Eindniveau Bestaande bouw
  • Aantal kamers 2
  • Aantal slaapkamers 1
  • Oppervlakte 52 mยฒ
  • Balkon Nee
  • Dakterras Nee
  • Parkeren Parkeervergunningen
  • Inclusief BTW Ja
  • Roken Nee
  • Huisdieren toegestaan Nee

Plattegronden

Inschrijven

Schrijf je in om op de hoogte gehouden te worden van nieuw aanbod.

Naar inschrijving
Betrokken bij jouw vastgoed

Rotsvast is meer dan een dienstverlener. Wij zijn een partner die met je meedenkt.

Ontdek onze aanpak

In de buurt

Filter op faciliteiten
Utrecht

Maandag t/m vrijdag van 09:00 tot 18:00.

Direct informatie aanvragen?