Eindhoven

Anna van Engelandstraat

  • 130mยฒ
  • 5
€2.795 p.m. excl

Beschrijving

Sfeervol en ruim jaren '30 herenhuis te huur in het geliefde Vonderkwartier โ€“ 5 slaapkamers, luxe afwerking en tuin!

In het charmante Vonderkwartier, op loopafstand van het bruisende centrum van Eindhoven, ligt dit karakteristieke en smaakvol gerenoveerde jaren '30 herenhuis. Deze ruime woning combineert de authentieke details van vroeger met het moderne comfort van nu. Met maar liefst vijf slaapkamers, een royale leefruimte, een moderne open keuken en een heerlijke achtertuin, is dit het ideale huis voor gezinnen, expats of werkende stellen die ruimte en sfeer zoeken in een levendige en centrale omgeving maar toch rustig gelegen. De woning wordt gemeubileerd verhuurd en is derhalve geheel instapklaar.

Locatie

Het Vonderkwartier is een van de meest geliefde wijken van Eindhoven: een sfeervolle buurt met veel karakter, omgeven door groen en voorzien van alle gemakken. De woning ligt op loopafstand van het stadscentrum รฉn nabij het mooie Genderpark. Ook scholen, winkels, sportvoorzieningen en diverse uitvalswegen zijn snel bereikbaar. Een perfecte combinatie van rust, bereikbaarheid en stadsleven. De High Tech Campus is op fietsafstand gelegen en ook ASML is prima bereikbaar met bus, fiets of auto. De Internationale School is binnen 10 minuten met de auto te bereiken. Parkeren kan middels een parkeervergunning.

Indeling

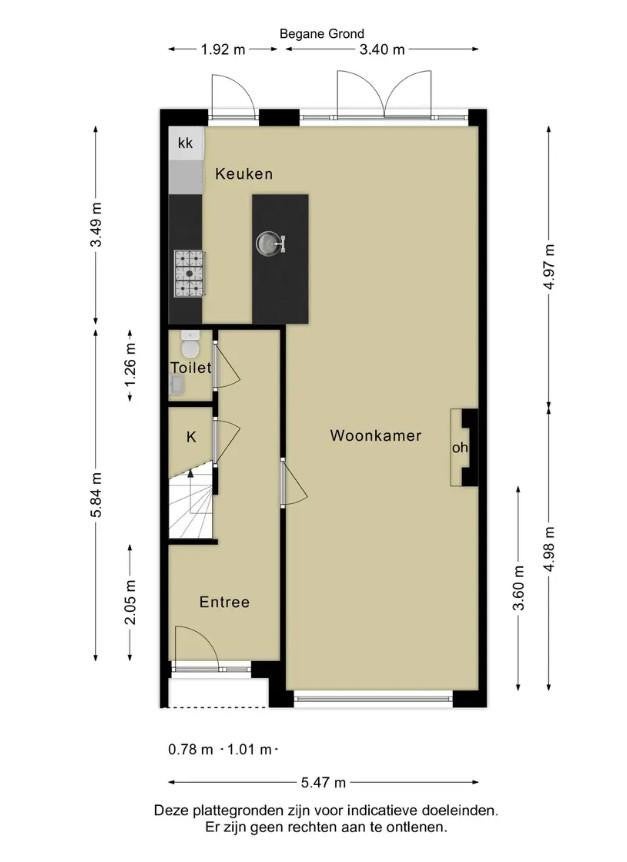
Begane grond

Via de authentieke entree kom je in de hal met modern toilet, trapopgang en praktische trapkast.
De royale woonkamer ademt sfeer met een warme eikenhouten vloer, een stijlvolle gashaard en openslaande tuindeuren naar de zonnige achtertuin.

De moderne open keuken is een echte eyecatcher en perfect voor kookliefhebbers. Uitgerust met een schiereiland en hoogwaardige inbouwapparatuur, waaronder een Quooker, 5-pits gasfornuis, vaatwasser, combi-oven, koelkast en vriezer.

Eerste verdieping

Drie ruime slaapkamers (ca. 5 mยฒ, 13 mยฒ en 14 mยฒ) bieden volop mogelijkheden voor slapen, werken of studeren. De grootste kamer aan de achterzijde beschikt over een schuifpui naar een breed balkon op het noordoosten.

De luxe badkamer is geheel betegeld en voorzien van alle comfort: een ligbad, inloopdouche, dubbele wastafel, tweede toilet, designradiator en elektrische vloerverwarming.

Tweede verdieping

Via een vaste trap bereik je de overloop met wasmachineaansluiting, dakraam en praktische bergruimte.

Hier bevinden zich nog twee volwaardige slaapkamers: รฉรฉn aan de voorzijde met dakraam, de ander aan de achterzijde met een dakkapel. Beide kamers beschikken over extra bergruimte achter knieschotten.

Derde verdieping

Deze ruimte blijft in gebruik bij verhuurder voor opslag.

Buitenruimte

De diepe achtertuin is verzorgd aangelegd met gazon, borders, sfeervolle verlichting en bestrating. Achterin staat een houten berging met elektra, en dankzij de eigen achterom is de tuin ook via de achterzijde bereikbaar. De tuin is gelegen op het noordoosten, waardoor je gedurende de dag op meerdere plekken in de tuin van de zon kunt genieten.

Bijzonderheden

  • Karakteristiek herenhuis uit de jaren '30, gerenoveerd in 2015
  • Energielabel C
  • Voorzien van dubbel glas, dak- en vloerisolatie, geรฏsoleerde spouwmuren
  • 5 slaapkamers, ideaal voor grotere gezinnen of thuiswerkers
  • Open leefruimte met veel daglicht en luxe keuken
  • Gelegen in populaire wijk met alle voorzieningen binnen handbereik
  • Ideaal gesitueerd ten opzichte van het centrum, de High Tech Campus, ASML en Internationale School
  • Eikenhouten trapbekleding en stijlvolle afwerking door het hele huis
  • De woning wordt volledig gemeubileerd verhuurd

Beschikbaar per: 16 december 2025

Huurprijs: โ‚ฌ 2.795,00 per maand excl. g/w/e, gemeentelijke belastingen en tv/internet
Waarborgsom: 2 maanden huur

Huurperiode: tussenhuur voor 12 maanden met optie op verlenging naar 24 maanden

Details

  • Startdatum Beschikbaar vanaf 16-12-2025
  • Kale huur โ‚ฌ2.795
  • Totale huur Servicekosten โ‚ฌ2.795 Inbegrepen
  • Overige kosten Gas/Water Water Elektriciteit Internet Televisie - Niet inbegrepen Niet inbegrepen Niet inbegrepen Niet inbegrepen Niet inbegrepen
  • Borg โ‚ฌ5.290
  • Energielabel C
  • Type Woonhuis, Herenhuis
  • Nieuwbouw Nee
  • Eindniveau Bestaande bouw
  • Aantal kamers 6
  • Aantal slaapkamers 5
  • Oppervlakte 130 mยฒ
  • Balkon Ja
  • Dakterras Nee
  • Parkeren Parkeervergunningen
  • Inclusief BTW Nee
  • Roken Nee
  • Huisdieren toegestaan Ja
Betrokken bij jouw vastgoed

Rotsvast is meer dan een dienstverlener. Wij zijn een partner die met je meedenkt.

Ontdek onze aanpak

In de buurt

Filter op faciliteiten
Eindhoven

Maandag t/m vrijdag van 09.00 - 17.00 uur. Lunchpauze van 12.30 - 13.00 uur (ook de telefoon luncht).

Direct informatie aanvragen?