Utrecht

Adriaanstraat 12

  • 142mยฒ
  • 6
€3.895 p.m. excl

Beschrijving

Charmante klassieke gemeubileerde woning met moderne gemakken in het hart van Utrecht-Oost!

Deze prachtige tot in de puntjes recent verbouwde woning heeft alle charme behouden en is toch volledig vernieuwd, voorzien van vloerverwarming en heeft een A++ label. 5 slaapkamers, 2 badkamers en een thuiskantoor, kortom dit is dit ideale gezinshuis!

Ligging:

Gelegen aan de rustige Adriaanstraat, in het gezellige Buiten Wittevrouwen in Utrecht Oost. Gelegen tussen de Nagtegaalstraat met winkels, supermarkten en horeca en de statige Maliebaan en nog op loopafstand van de binnenstad.

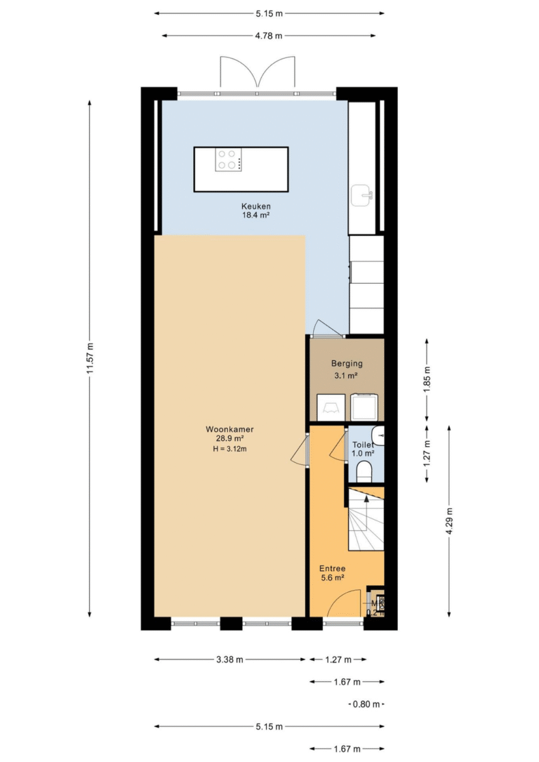
Indeling:

Entree, hal met toilet ruimte voorzien van zwevend design toilet en fonteintje.

Woonkamer met aan de voorzijde het zitgedeelte. De royale woonkeuken ligt aan de achterzijde. De keuken is voorzien van voldoende kastruimte, een kookeiland met inductie kookpaalt. Verder voorzien van: combimagnetron, koelkast, vriezer, vaatwasser. Inpandige kast voorzien van wasmachine en wasdroger.

Openslaande deuren naar de achtertuin. Deze is voorzien van hoogwaardige louncheset.

1e etage

Op deze etage aan de overloop 3 slaapkamers, een studeerkamer, separaat toilet en badkamer met inloopdouche en dubbele wastafel.

2e etage

1 ruime slaapkamer aan de voorzijde. Separaat toilet. Aan de achterzijde de masterbedroom, deze heeft en suite de badkamer en een ruime inloopkast. Op de bovenste etage is ook een krachtige airco aanwezig om het huis te koelen bij warme dagen.

Bijzonderheden:

  • eigenaren vertrekken naar het buitenland en hebben het recht op terugkeer nรก 12 maanden.
  • minimale huur termijn voor huurders is 12 maanden.
  • Geheel voorzien van vloerverwarming.
  • Gemeubileerd te huur.

Heeft u interesse in deze unieke woning? Neem snel contact met ons op voor een bezichtiging en ontdek zelf de charme van Adriaanstraat 12!

Details

  • Startdatum Beschikbaar vanaf 01-12-2025
  • Kale huur โ‚ฌ3.895
  • Totale huur Servicekosten โ‚ฌ3.895 Inbegrepen
  • Overige kosten Gas/Water Water Elektriciteit Internet Televisie - Niet inbegrepen Niet inbegrepen Niet inbegrepen Niet inbegrepen Niet inbegrepen
  • Borg โ‚ฌ3.895
  • Energielabel A+++
  • Type Woonhuis, Eengezinswoning, Tussenwoning
  • Nieuwbouw Nee
  • Eindniveau Bestaande bouw
  • Aantal kamers 7
  • Aantal slaapkamers 6
  • Oppervlakte 142 mยฒ
  • Balkon Nee
  • Dakterras Nee
  • Parkeren Betaald parkeren, Parkeervergunningen
  • Inclusief BTW Nee
  • Roken Nee
  • Huisdieren toegestaan Nee

Plattegronden

Inschrijven

Schrijf je in om op de hoogte gehouden te worden van nieuw aanbod.

Naar inschrijving
Betrokken bij jouw vastgoed

Rotsvast is meer dan een dienstverlener. Wij zijn een partner die met je meedenkt.

Ontdek onze aanpak

In de buurt

Filter op faciliteiten
Utrecht

Maandag t/m vrijdag van 09:00 tot 18:00.

Direct informatie aanvragen?